(en)
Menu

10 November 2025

Schloeman 3000T Extrusion Press

CNC Pressure Pad Machining video

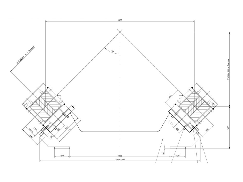
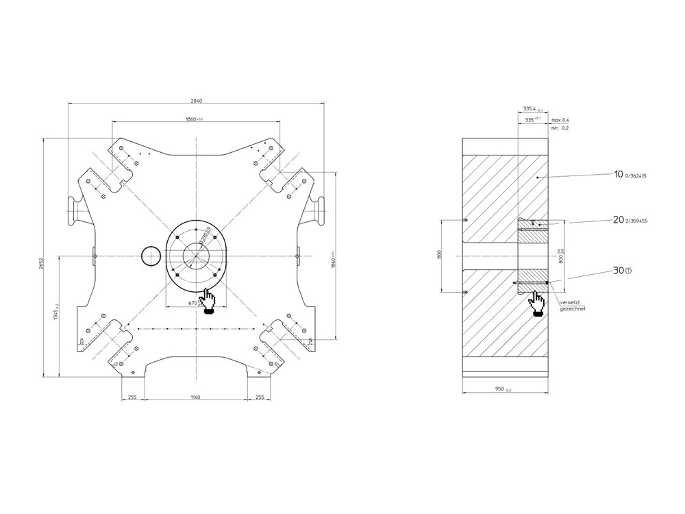
CNC machining of Fixed Platen Oval Pressure Pad

Machine a Fixed Platen Oval Pressure Plate bore to accept new larger replacement

Fixed Platen Oval Pressure Plate

Before CNC boring
800 mm high x 670 mm wide x 335 mm deep

After CNC boring
810 mm high x 680 mm wide x 340 mm deep

Do you need a 24/7 worldwide response to your engineering emergency?

Get in contact

How can we help you? We offer a 24/7 worldwide emergency response. Please select from the options below to contact us.

Submit an Enquiry Office Locations Quick Contacts Careers